home
concorsi +
bagnaria
cazzago san martino
milano +
gallarate
de castilla
sirtori
lima
gorlago
uggiano la chiesa
bedonia
4° Design Award
casa residenziale in legno
progetti +
fagnano olona +
liserta
trento
bollate
bucine
milano +
colonna
settimio severo
mac mahon
gola
magolfa
gallarate
pestalozzi
petrarca
orseolo
saffi
morandi
zurigo
san gottardo
viareggio
roma
uggiano la chiesa
suresnes
san felice
pubblicazioni +
cose di casa
design for 2017
tecniche nuove +
colonna
gola
magolfa
pestalozzi
san gottardo
san felice
viareggio
punti di vista
profilo
marco brianzoli architetto
urbanistica architettura design
home
concorsi +
bagnaria
cazzago san martino
milano +
gallarate
de castilla
sirtori
lima
gorlago
uggiano la chiesa
bedonia
4° Design Award
casa residenziale in legno
progetti +
fagnano olona +
liserta
trento
bollate
bucine
milano +
colonna
settimio severo
mac mahon
gola
magolfa
gallarate
pestalozzi
petrarca
orseolo
saffi
morandi
zurigo
san gottardo
viareggio
roma
uggiano la chiesa
suresnes
san felice
pubblicazioni +
cose di casa
design for 2017
tecniche nuove +
colonna
gola
magolfa
pestalozzi
san gottardo
san felice
viareggio
punti di vista
profilo
lima
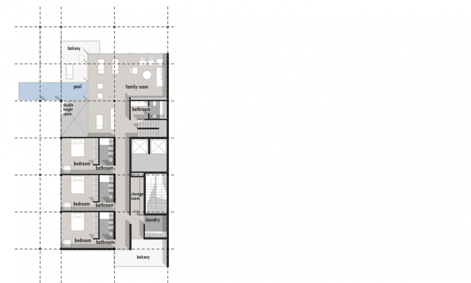
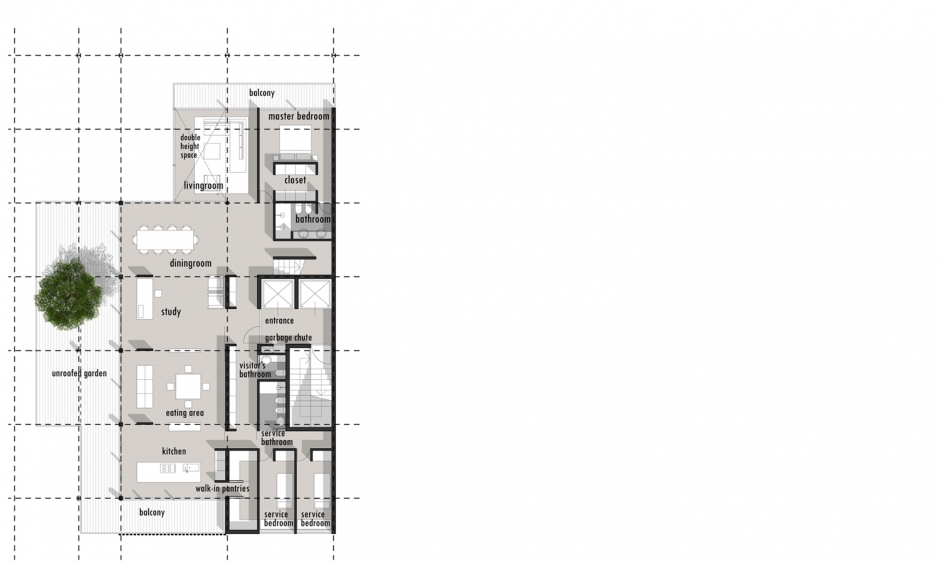
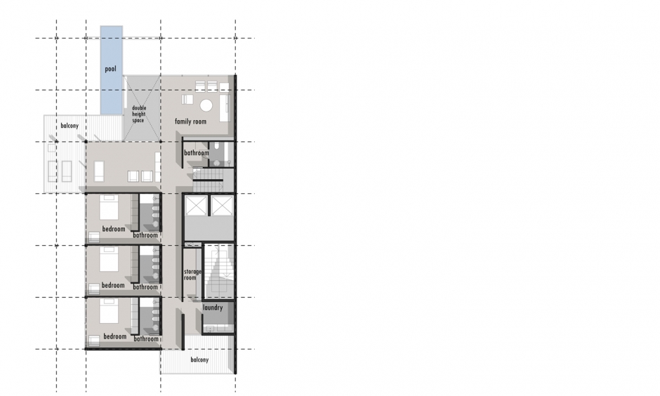
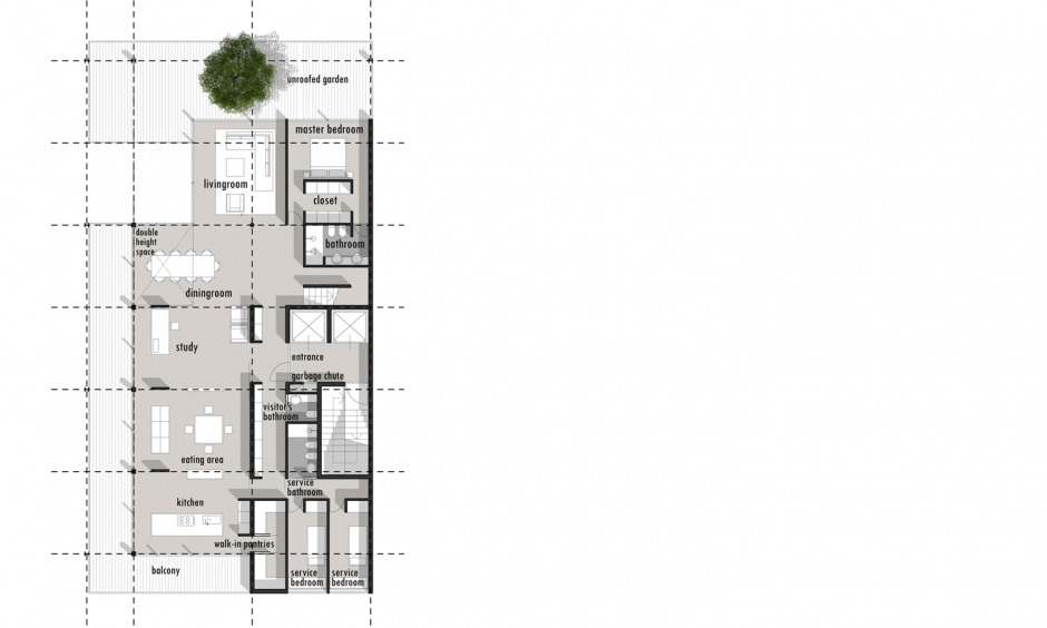
new international architecture competition “sky condos” condominius in front of golf club . san isidro
con
arch. marco bozzola (capogruppo)
arch. valentina grittini
arch. mathieu michell